プロの住宅レシピ 発想の転換!ドアの内側にとりつけた紙巻き器

合同会社インクアーキテクツ
金谷 聡史
真鍮ハンドル 真鍮タオル掛け

紙巻き器が見当たらないトイレ空間。実は入り口の引き戸に設置されている。

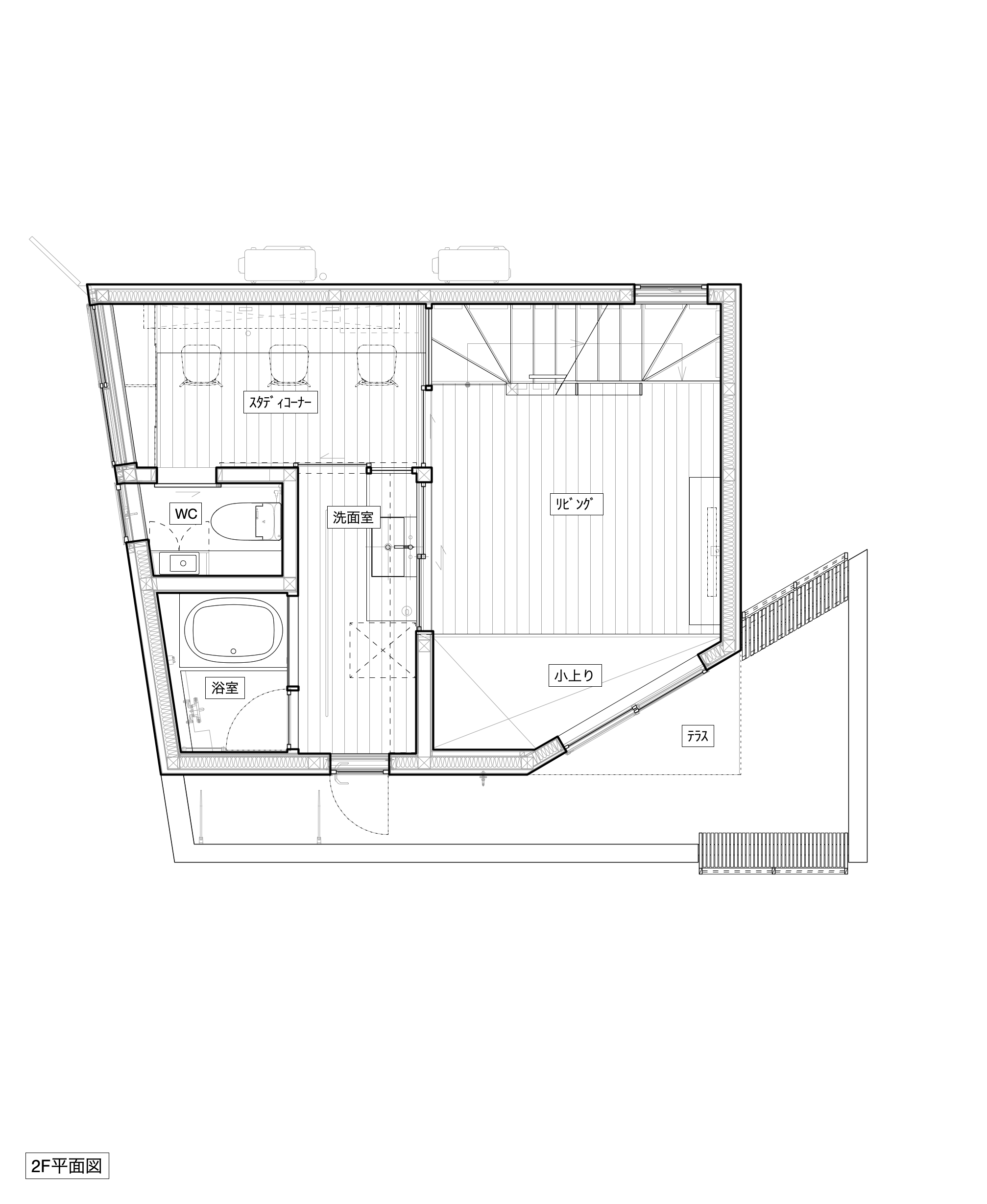
間取り図。トイレのスペースはかなりコンパクトになっている。

限られた面積の中で、極力住まう人の要望をかなえていこうとすると、どうしてもトイレの面積などが小さくなることがあります。
この住宅でも、トイレのスペースはかなりミニマムなものになっていました。そこでどこに取り付けるか問題になったのが紙巻き器でした。使用しやすい位置につけると、今度は入るときに邪魔になるという状態で、これが毎回のこととなると結構なストレスになるな、と考えました。そこで悩んだ末に出したのはドアの内側に紙巻き器をつけるというアイディアでした。
入るときにはドアを開くので、邪魔にはなりませんし、閉じれば使う際にちょうどいい高さの部分に設置できるので問題ありません。紙巻き器のデザインもいかにもトイレという感じではなく、シンプルでスタイリッシュなものを選択して、この方法を実現しました。

シェアする

採用されている製品

オリジナル金物|上手工作所
上手工作所
合同会社インクアーキテクツ
金谷 聡史
ここが私の評価ポイント!
■採用製品:真鍮 細ハンドル

金具を真鍮に統一すると決めていたので、その中でシンプルで空間の邪魔をしないものを選択しました。ここまで余計な部分を省いているデザインは他にはないかと思います。
採用製品
金物パーツ|toolbox
株式会社TOOLBOX
合同会社インクアーキテクツ
金谷 聡史
ここが私の評価ポイント!
■採用製品:真鍮金物 てぬぐいかけ表打ち

無垢の真鍮製のタオルハンガーです。金物は真鍮で統一すると決めている中で、シンプルで長く変わらず愛せるデザインの物を選択しました。無垢なので、経年による変化が楽しめます。
採用製品
合同会社インクアーキテクツ
金谷 聡史

他の家づくりのアイデア

プロの住宅レシピ カテゴリ