作品紹介

猫とゴルフをこよなく愛される御夫妻の家です。
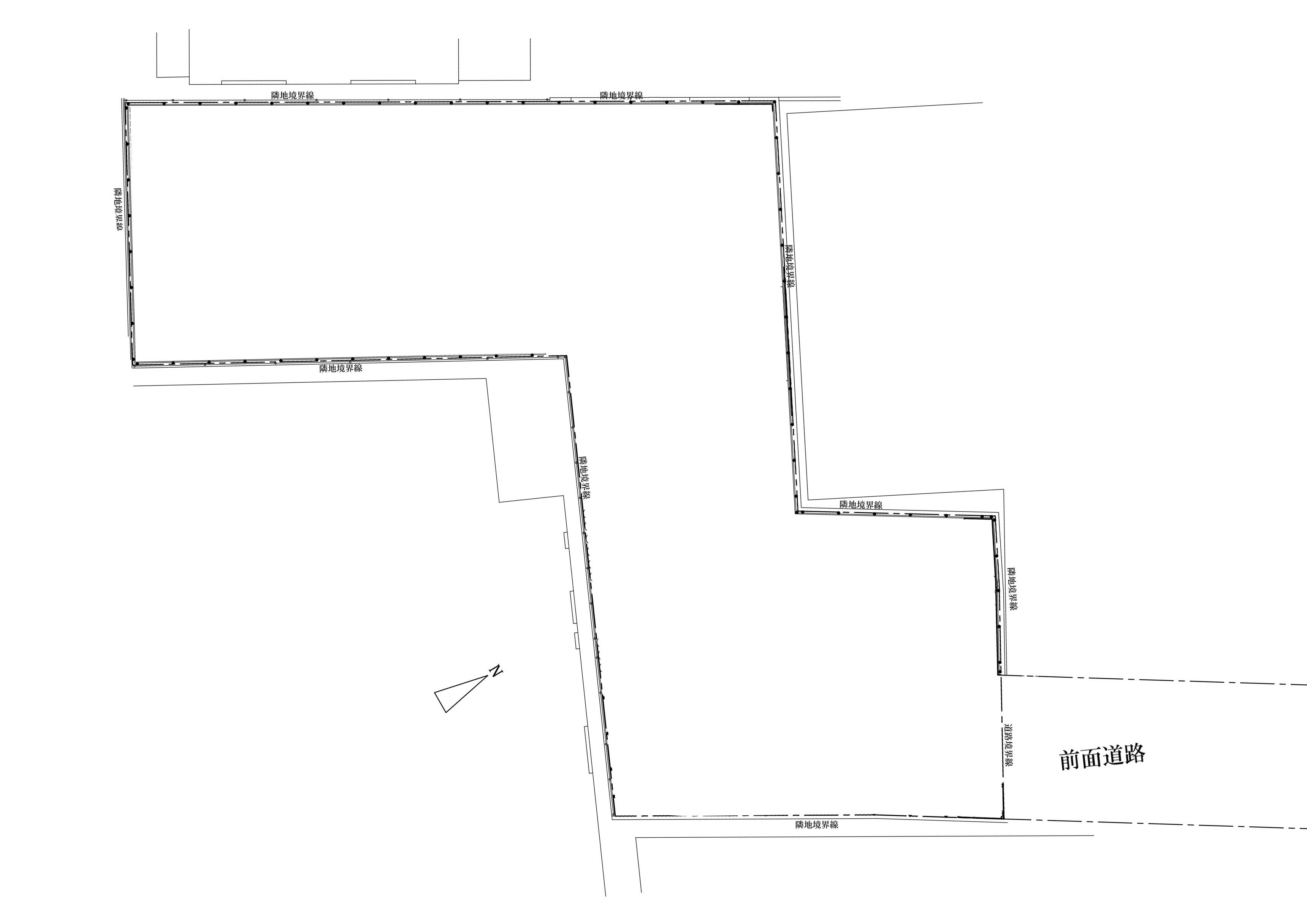
敷地は、奥が深いクランク形状で、道路に接する一辺以外は隣家で囲まれていました。

奥行きの深さはゴルフの練習場には魅力的ですが、幅が狭いため一般的な箱型では窮屈で窓が開けにくい家になってしまいます。
そこで、ゴルフ練習場を広く確保することを第一義に建物はコンパクトな箱型としつつ、その箱の中に小さなテラスや吹抜を分散して配置しました。
内部は1階がゴルフゾーン、2階が生活ゾーン=猫のスペース、その中心に吹抜があれば採光と通風、そして上下階のコミュニケーションを生み出すことができ、小さなテラスに面する和室や浴室・洗面の窓は、隣家を気にすることなく全開できます。
主要な居室間の間仕切である引戸(引込式)を開け放てば、1階と2階全体につながりが生まれます。

この家にとって重要なのは、すべての部屋に気持ちのいい光と風が入り、そして猫とゴルフが家のどこにいても感じられること、なのです。
外部空間は、1階にはパターの練習場としてグリーン、テラスから上がった屋根は遠望が可能なルーフバルコニー、開放感の感じられる場所として内部に連続させました。

※オーナーはこの1階をゴルフラウンジとしてゲストをお迎えしています。
どなたでもWELCOMEですので、ゴルフがお好きな方はぜひ行ってみてください。
【ゴルフラウンジ グリーンオアシス】

 https://golf-oasis.tokyo/

建築前の土地

作品データ

所在地: 東京都 品川区

土地面積: 251㎡

延床面積: 224㎡

土地の形状: その他変形地

施工会社: 株式会社 山菱工務店

作品集

物件

■ 上池台の家

隣にご両親の家が建つ子世帯の住宅です。 2つの家の距離感は...
物件

■ 平塚K邸

猫とゴルフをこよなく愛される御夫妻の家です。 敷地は、奥が...