狭小敷地の2所帯住宅

作品紹介

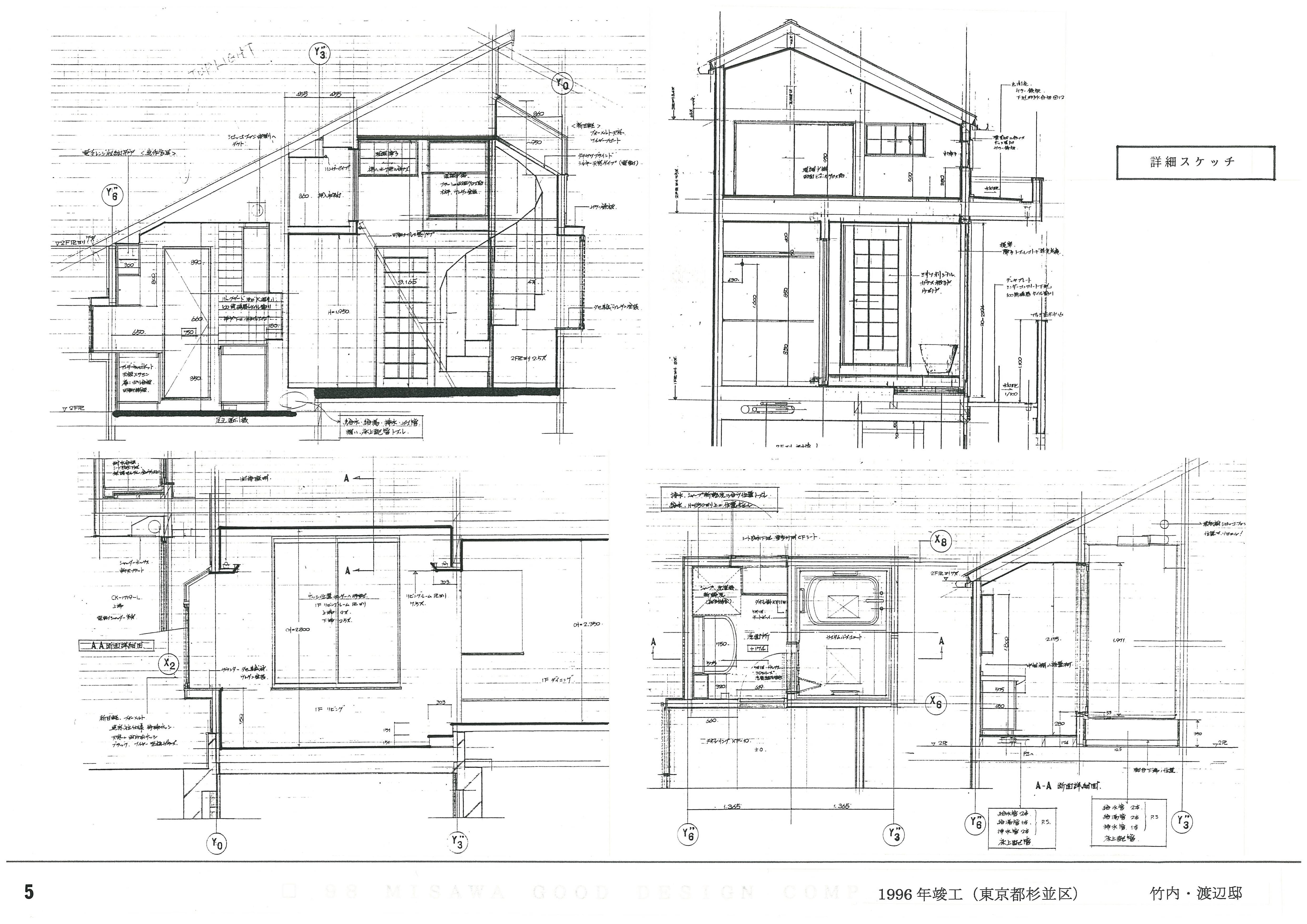
現在の住まいはとにかく暗いので明るくして欲しい事、が一番のご要望。1階とB1階は娘夫妻(ご主人はベーシスト、奥様はダンサー)、2階はご両親の住まい。光の取り込みは、2階は2.5間巾の天窓から、1階はドライエリアから取り込む提案にしました。又、北側斜線なりに5寸勾配屋根を大きく掛ける事で、2階リビングの天井高さを3.2m確保し、螺旋階段で入る茶室も提案させて頂き大変喜ばれました。2階のリビングは2FL+300㎜とし1階リビングは1FL-300㎜とすることで、1階の天井高さも2.8m確保し奥様が大きな鏡を見ながら存分にダンスの練習が出来る様提案させて頂きました。天窓は雨漏りの原因となる為、3重板金のディテールを作成し半日かけ職人と現場での作業を共有しました。

作品データ

所在地: 東京都

土地面積: 126㎡

延床面積: 120㎡

土地の形状: 狭小地

建物価格: 5000~9999万円

作品集

物件

■ オリーブハウス

プロヴァンス地方をイメージした建物は、エントランスは道路...
物件

■ ウエハラの家

シンプルでシャープでミースのヴァルセロナチェアが似合う様...
物件

■ シンプルで温もりの感じる住まい

建築に対するご要望はシャープな中に温かみを感じる外観、内...
物件

■ 趣味の家

コンピューター会社の経営者で父とご子息夫妻の2所帯住宅です...
物件

■ 重厚感のある家

田園調布に建つ製紙会社社長宅。クライアントのご要望は街並...
物件

■ リノベーション自邸兼オフィス

2004年過労で右目を中心性網膜症と診断され独立する事に。そ...
物件

■ 大規模リノベーション

ご両親の住まいに、長男夫妻が同居するというリノベーション...
物件

■ ワークスペース付アパート

ミサワホームアパート設計部時代、当時流行してましたロフト...
物件

■ 新しい住空間システム

20代の頃建築に対しある疑問を抱いていました。それは絵は画...
物件

■ 国立国会図書館関西館国際設計競技

20世紀最大のコンペと言われた国際設計競技。孤軍奮闘して挑...
物件

■ 狭小敷地の住宅

カーポート上部に囲われたグレーチングバルコニーを配するこ...
物件

■ 狭小敷地のタウンハウス

3階建ての細長いファサードに、ガルバリウム鋼板と一部1階部...
物件

■ 四季そして時の移ろいを感じる住まい

リビングの吹抜けにはハイサイドライトが配され、そこから差...
物件

■ 無量院客殿

ご住職の構法など技術は新しいものを取り入れその中に本物古...
物件

■ 狭小敷地の2所帯住宅

現在の住まいはとにかく暗いので明るくして欲しい事、が一番...