猫の集合住宅

  • キャットウォークのあるリビング

  • リビング

  • オープンクローゼット(寝室)

  • サニタリー

  • 外観

  • 猫が外に出ない格子扉

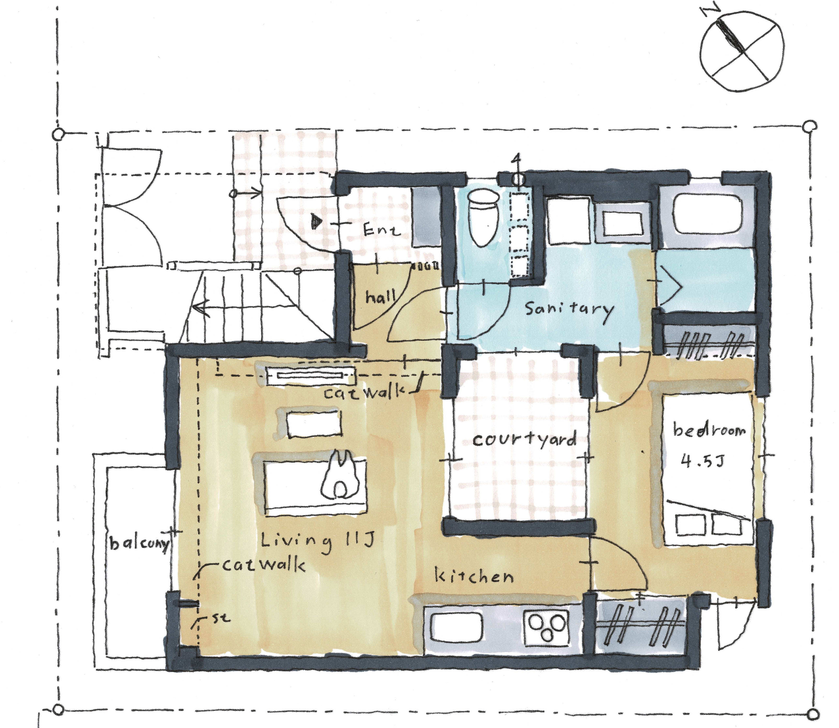
  • PLAN

作品紹介

猫が大好きで、猫の為の集合住宅を作りたい。しかも、住むのが楽しみになる、ワクワクする様なデザインの家です。

 

北向きの暗い敷地を、快適な住まいする為に、建物の真ん中に中庭をつくり、3階から、1階まで、日の光が白い中庭の外壁に反射しながら注ぐ地上までそそぐ、明るい住まいを提案しました。

小さな敷地ですので、各階、1つだけの住戸として、1階から3階まで中庭をそれぞれが取り囲んでいます。

普通集合住宅の様に、隣の部屋が無い為、隣の人の気配を感じず、プライバシー性の高い住まいです。

 

猫と一緒に住む家ですので、キャットステップ、キャットウォークが有り、リビングの高い場所は、猫の住む世界にしています。

中庭を囲んだ間取りは、各部屋の扉、猫の通れる猫ドアをつけた事で、猫がグルグル1週して遊べる、猫が遊べる回遊式の住戸なっています。

 

回遊式の間取りは、人の動きの自由度高めて、生活しやすい間取りの特徴です。

中庭を取り囲む事で、明るさと心地良さ、生活のし易さを兼ね備えています。

 

中庭は外で猫遊ばせても、迷子にならない安全な遊び場になっています。

トイレには、猫のトイレを置く場所もうけて、猫トイレ用換気扇も整備しています。

玄関には、猫が飛び出してしまわない様に、格子の内扉をつけました。

 

女性も借りられる様、オートロックなどのセキュリティの配慮や、宅配ボックス設置しています。

何より、覗かれない、音がしない、プライバシーに配慮した設計を提案しました。

また、クローゼット・オープンクローゼット・リビングの棚・洗面所のタオル棚・洗濯機棚・トイレの猫グッズ置場・下足入れと収納たっぷりです。

調湿、吸匂するタイル、エコカラットもリビングの壁に使い、猫の匂いも消してくれます。

 

公式ホームページはこちらから ⇒ 【株式会社小木野貴光アトリエ一級建築士事務所】

作品データ

所在地: 東京都 品川区

土地の形状: 狭小地

建物価格: 2000万円未満

作品集

物件

■ 斜め40do猫の家

初めて、依頼者と敷地に伺った時、風通しが良く、南東側隣家...
物件

■ 光をつかむ家(Light Fall House)

敷地は、東京近くの住宅密集地。南側道路だが向いには3階建...
物件

■ 自然素材・ウロコ壁の家

ウロコの様な可愛らしい外壁と、自然素材を使った内装が特徴...
物件

■ 猫と本の家:好きを大事にしたリノベーション

人も猫も本も、暮らしを楽しむ空間を設計した、リノベーショ...
物件

■ 光と風のリノベーション住宅

光と風が気持ちよく入った家に住みたい!そんな設計ができる...
物件

■ 子と猫の家~マンションリノベーション~

猫ちゃん大好きな子育て世代ご夫婦の、築34年のマンション...
物件

■ 曲線のオフィス

創業の地であり、施主が創業初期に建てた思い入れのある本社...
物件

■ 田園リゾート・老人ホーム

リゾートという名称は最初から決まっていた訳ではありません...
物件

■ ​市松天井のラボ+オフィス

会議室として使われていた会社のフロアのリノベーションです...
物件

■ ルーバー天井の家・リノベーションマンション

「ルーバー天井」が印象的な、マンションのリノベーションで...
物件

■ 南青山の東洋医学クリニック+鍼灸院

「R壁」と「スキップフロア」で、可愛らしい空間の「質感」が...
物件

■ 中庭が街をつくる、テラスハウス

一つの街の様な、住宅郡にする事で、素敵な環境が生まれるの...
物件

■ 「かんたき」伊勢原

木の真ん中のホールが、求心性を生む、看護施設を設計した。 ...
物件

■ 猫の集合住宅

猫が大好きで、猫の為の集合住宅を作りたい。しかも、住むの...
物件

■ 収納と洗濯にこだわった、テラスハウス

子育て世代にアピールできる、ライフスタイル提案型集合住宅...
物件

■ 吹抜けが心地よい、みどりの内科クリニック

患者さんが、リラックスして待ち時間を過ごせる様、待合室を...
物件

■ 子育てママの、木のオフィス

オフィスを移転するにあたって、インテリアデザインの依頼を...
物件

■ 中庭から光を取り込む、3階建ての家

明るい家をつくる為、中庭を家の真ん中につくり、メッシュ素...
物件

■ 猫と暮らす、リノベーション狭小住宅

小さな家に大人4人で住まわれていましたが、仲の良いご家族...