くらしのセンター・DAN HOUSE 浜松店

作品紹介

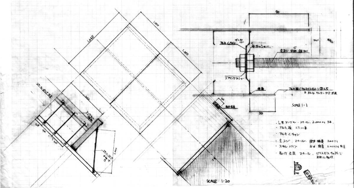
多摩美術大学の建築科を卒業と同時に自身で設計を行った中村高淑の処女作。実家および自身の住まいでもある住宅部分と家業のインテリアショップの店舗を併設する建物である。

ローコスト・ハイデザインをコンセプトに厳しいコスト制約の中で、スケルトンは構造認定を取得している地場の軽量鉄骨系プレハブ倉庫メーカーの躯体フレームを流用し、インフィルとしての内装や外構などとは分離して、それぞれ主要な専門職を一時的に直接雇い入れ、施主直営工事として自身で直接監督し発注した。徹底した内製化などのコストダウンを図ることで、店舗用の特注の内装什器まで含めた総工事費で「 40万円/坪 」という、当時としても驚異的な超ローコストを実現することができた。

倉庫用のシンプルな躯体をベースに基本的には廉価な材料の組み合わせにより仕上げたが、インテリアショップとしてはいかにも安っぽい印象を与えないようにと工夫した。
具体的にはガルバリウム鋼板やアルミの庇やバルコニー、鉄といったシャープな金属素材を用い、シンメトリーを基調にしたリズムで格調の高さを与えつつも、エントランスアプローチ部分はあえてずらして配置、さらに木造の柱に軽やかな鉄のフレーム+膜屋根を乗せ、やわらかな質感の対比構成によって、権威的になりすぎたり単調さを避けるために、最大限のコストパフォーマンスを得られるよう計画した。

1F、2F共に軽量鉄骨の構造柱はバルコニー下部のショーウィンドウ的な展示スペース以外を除き外周部のみに設置、つまり短辺方向9.000m・5軒間口(1軒=1800)を無柱空間とすることで、長い将来にわたりフレキシブルな室内レイアウトを可能にする。

学生時代に設計事務所や内装業者でのアルバイトでの設計や現場経験があるとはいえ、大学卒業してすぐのことで右も左もわからず、何案か考えるもことごとく予算に会わずに概算見積段階でボツになる。
紆余曲折があったもののたまたま建設地の数ブロック先に倉庫屋さんがあったことでカタログや実例をみせてもらい、スケルトンインフィルによる分離発注の手法を考えついたこと、さらにたまたま内装業に関係して職人のつてもあったことで予定よりもむしろ安価な着地点にたどりつき、完成にこぎくことがでいた。当初イメージしたものからはかなり割り切った案になったとはいえ、こうして自身で考えた初めての建築が目の前に現れた時にはたいへんな感動を覚えた。
実は家業を継ぐつもりで新築したのが、この自宅兼店舗の建設の結果、あらためて建築設計の道に進みたいと強く思うようになり、数ヶ月後には上京して、母校である多摩美術大学の研究室を訪れることになる。縁あって田淵教授(当時は助教授)の主宰する設計事務所と数年後には母校多摩美キャンパス設計室に出向し、数々修行を積ませてもらい、独立への足がかかりを掴むことになる。

バブル崩壊後の長引く不況と父親の死去もあって、すでに建物は売却したのだが、今現在(2020年時点)でも飲食業の店舗として長きに渡り使われ続けている。
親不孝ではあったが、建築家として今日があるのもこの一作目の忘れがたい経験があるからこそだと思い、機会を与えてくれた両親には感謝したい。

[構造]軽量鉄骨造

作品データ

所在地: 静岡県 浜松市

土地面積: 283㎡

延床面積: 242.06㎡

作品集

物件

■ 茅ヶ崎・O邸

物件

■ 名古屋の家

〜将来の変化に柔軟に対応する、都心部に建つ玄関共有型二世...
物件

■ 相模大野の家

〜旗竿状地に建つ、夫婦それぞれの趣味室を持つ長期優良住宅...
物件

■ 市川の家

角地に建つ将来の可変性に富んだデザイナー家族の住む家。 ...
物件

■ 伊勢原の家

[構造]木造 2階建て
物件

■ 杉戸町の家

[構造]木造 一部 鉄骨造
物件

■ 鎌倉の家

[構造]混構造(木造 一部 鉄骨造)
物件

■ 玉川学園の家

当事務所としては初めての黒い家です。キリリと引きしまった...
物件

■ 藤沢の家・K邸

高台に建つ見晴らしのいいコンパクトな家です。 なんと、玄...
物件

■ 横須賀の家

眺望の良い高台に建つ、混構造のガレージハウス。インナーガ...
物件

■ 厚木の家

ローコストながらインナーガレージを持つ家です。 広々とした...
物件

■ 東雪谷の家

大田区を流れる呑川に面する狭小住宅、それも計画河川によっ...
物件

■ 春日部の家

クルマ2台を収容できるガレージハウス。ちょっとした作業も...
物件

■ 伊豆大島の家

平屋の建物をL型に計画、それぞれのウィングでLDKと個室群...
物件

■ 湘南台の家

[構造]木造 一部 鉄骨造
物件

■ 武蔵新城の家

アロマ教室併用、木と鉄骨を組み合わせた構造の3階建て住宅...
物件

■ 町田金森の家

予算的な条件からビルトインガレージの優先順位を低く設定、...
物件

■ はなみずきの丘の家

東京都郊外に建築された若い夫婦2人の家である。将来子供を...
物件

■ 蓼科の山荘

1000坪を超える敷地に平屋建で計画、全室から蓼科山を望む...
物件

■ 新羽町の家

まだまだ緑が多く残る地に建つシンプルな住宅。ローコストな...
物件

■ 逗子の家

緑深い山並みの一角にこの住宅は位置する。計画地は、 JR逗子...
物件

■ 藤が丘の家・E邸

[構造]木造
物件

■ 南雪谷の家

[構造]木造 一部 鉄骨造
物件

■ おゆみ野の家

[構造]木造
物件

■ 小田原の家

パブリックとプライベート、内包された外部空間と外に広がる...
物件

■ 仲手原の家

[構造]木造
物件

■ 余丁町の家

[構造]木造
物件

■ 若葉の家

[構造]木造
物件

■ 田奈の家

敷地は南側傾斜の恩田川左岸丘陵地にある。ここからは遠く富...
物件

■ 黒須田の家

郊外の住宅地に計画された1000万円台の住宅である。 敷地の...
物件

■ 藤沢の家

[構造]木造
物件

■ 狛江の家・N邸

ミニ開発の分譲住宅地の一角にある旗状地。ほぼ同時期に建設...
物件

■ 太子堂の家

茶沢通りの商店街から道路一本奥に入った住宅密集地。その一...
物件

■ 加賀原の家

[構造]木造 一部 鉄骨造
物件

■ 藤が丘の家・A邸

計画地は郊外とはいえ密集した住宅地の一角でその敷地面積は ...
物件

■ 神宮前・CURE+MA_House

原宿の住宅密集地内に中高層の店舗付住宅を計画することから...
物件

■ 鴨居の家

敷地形状と使い勝手から、細長い平面計画にしました。川が見...
物件

■ 上北沢の家

若い夫婦のための住宅です。29歳で東京の世田谷に土地を購...
物件

■ くらしのセンター・DAN HOUSE 浜松店

多摩美術大学の建築科を卒業と同時に自身で設計を行った中村...
物件

■ 保土ヶ谷の家・K邸

国道一号線から少し入った川沿いの敷地に計画された。敷地面...
物件

■ 美しが丘の家・N邸

家族3人と愛猫のためのコンパクトな家です。光の降り注ぐ吹...
物件

■ 秦野の家

広々ガレージと暖炉(薪ストーブ)のある家です。  仕事がら...
物件

■ 菊名の家

起伏の激しい横浜の住宅地において、眺めの良い高台にある...
物件

■ 上尾の家

1階LDKの吹抜けが核となって、そこを中心に2階の各個室へとつ...
物件

■ 大磯の家

南面、西面を住宅に囲まれた立地条件の中、南隣家の一部だ...
物件

■ 茅ヶ崎の家+ Max Clean Studio

趣 味と実益を兼ねた広々としたインナーガレージを持った3階...
物件

■ 綾瀬の家

長期優良住宅の認定を取得したガレージのある家です。敷地条...
物件

■ 大場町の家

敷地の北側に面するゴルフコースの緑の眺めを活かしプラバシ...
物件

■ 栗平の家

ガーデニングを楽しみながら、緑に囲まれたナチュラルな暮ら...
物件

■ 池上の家

都内の住宅街に計画した都市型3階建ての住宅です。敷地面積は...
物件

■ 狛江の家・Y邸

ローコストながらもハーレーダビッドソン用のバイクガレージ...
物件

■ 世田谷代田の家

狭小で変形した敷地ながらもクルマ2台分のインナーガレージを...
物件

■ 新横浜・篠原町の家

新横浜駅からほど近い丘陵地に新しく開発された区画に計画さ...
物件

■ 戸塚の家

計画地は40年ほど前に開発分譲された郊外の住宅街に位置する...
物件

■ 辻堂の家

辻堂駅からそう遠く無い商店街に隣接した住宅地の角地に位置...
物件

■ 磯子の家

敷地面積が14坪強という狭小地において、同居型の2世帯住宅...
物件

■ 保土ヶ谷の家・F邸

横浜郊外に新しく造成された住宅地の一角に計画された家。 ...
物件

■ 美しが丘西の家・I邸

アートディレクター・デザイナーであり、アーティストでもあ...
物件

■ 狛江の家・M邸

面積規模に制限のある長期優良住宅としてはほぼ最小限度規模...
物件

■ 蓮根の家

都内の過密状態ともいえる住宅密集地における既存住宅の建て...
物件

■ 宮前平の家

この家は郊外の住宅地にあり、周辺は若干の高低差のある分譲...
物件

■ 美しが丘西の家・T邸

郊外の住宅地に計画した吹抜けのある、若い家族のための家。 ...
物件

■ 上大岡の長屋

線路沿いにある高低差の激しい住宅地に計画した完全分離型の...
物件

■ 藤が丘の家・T邸

横浜市郊外の丘陵地帯に建つソーラーハウス。 見た目はわか...
物件

■ 美しが丘・A邸 + Verveine

横浜の郊外において評判のフレンチレストランの新築移転、お...
物件

■ はるひ野の家

中層マンションに囲まれた畑の残る区画整理された住宅地、そ...
物件

■ 八王子の家

郊外の見晴らしの良い高台にあり、南側に対して広く視界が抜...
物件

■ 狛江の家・S邸

北側の緑地を活かし南庭と両方に面して大きな開口部をもったL...
物件

■ 白金の家

計画地はいわゆる高級住宅街として知られる白金の一角にあり...
物件

■ 桜台の家

学生時代に集合住宅の設計製図課題の類例調査として訪れた「...
物件

■ 根岸の家

計画地である台東区はほぼ全域が防火地域(一部準防火地域)...
物件

■ 聖蹟桜ヶ丘の家

多摩市・聖蹟桜ヶ丘にある見晴らしのよい丘の上に建つガレー...
物件

■ 西巣鴨の家

防火地域に建つ方形屋根の家 都内の用途地域をまたぐ敷地面...
物件

■ 中村自邸+ふたつのアトリエ

新建築住宅特集2016年9月号掲載   横浜郊外の間口4.0m...