鎌倉・谷戸の家

作品紹介

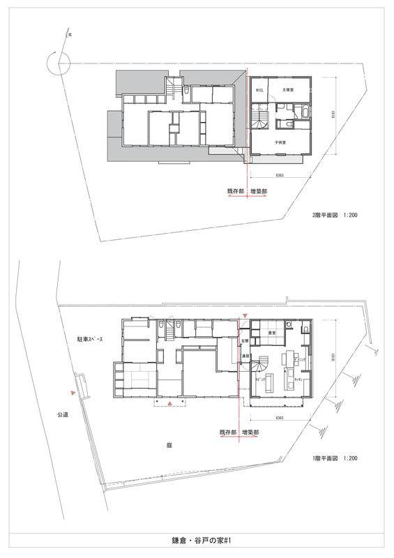
鎌倉の谷戸を深く入った比較的広い敷地に、既存家屋に増築で建てられた、専用住宅です。既存家屋と増築部との隙間に屋根を架けて2棟が繋がっています。この隙間は土間の通り庭空間となっていて、増築部の玄関として、また既存部との渡り廊下として使われます。計画は1階を主階として、リビング・ダイニング・キッチンを配し、北側に建具で仕切れる畳敷きの部屋を設けてます。部屋の中央にある階段はあえて表わしにして、2階屋根の天窓から注がれる自然光を1階の部屋にもたらしています。谷戸の地形的なデメリットである日照を、この開放的な階段スペースが解決しています。

作品データ

所在地: 神奈川県

土地面積: 474㎡

延床面積: 112㎡

土地の形状: 平地

施工会社: (株)吉田工務店

作品集

物件

■ elepa bldg.  エレパーツビル

下町情緒が残る、都内の商店街に面した敷地に建つ、複合用途...
物件

■ 鎌倉の週末住居

鎌倉の海に程近い、潮騒が届く敷地に建つ、4人家族のための週...
物件

■ 角の家

郊外の住宅地に建つ、5人家族のための戸建て住宅です。角地の...
物件

■ 鎌倉・谷戸の家

鎌倉の谷戸を深く入った比較的広い敷地に、既存家屋に増築で...
物件

■ 百人町の町屋

都心の商店街に建つ、典型的な狭小住宅です。大通りからすこ...