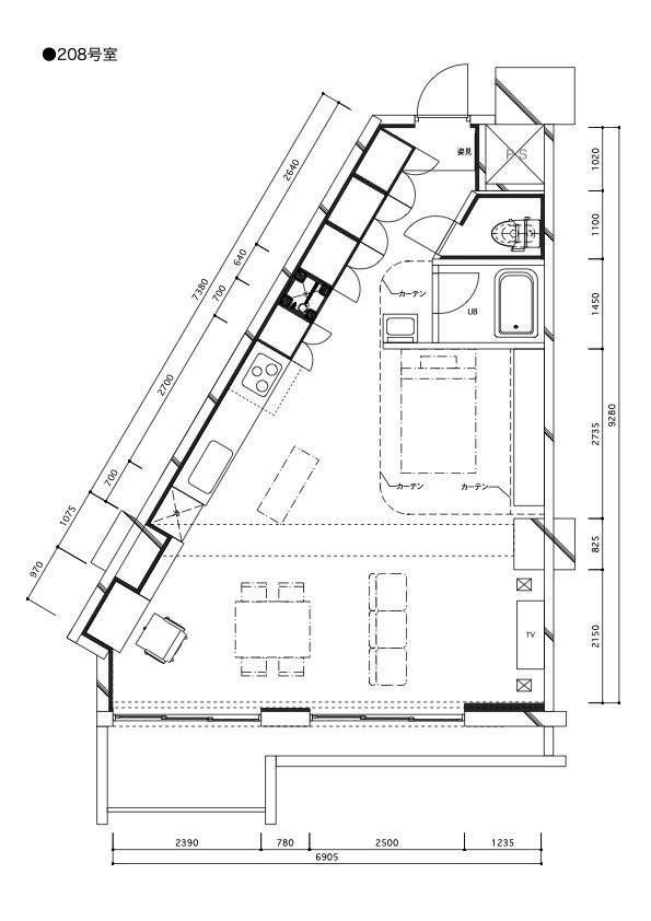
208号室 〜最小限で最大限のリノベーション〜

  • 壁を取り払い、大きなワンルームにしました。間仕切りがなくなって、桜並木が窓一杯に見えます。

  • リビングのエリアは、コンクリートの梁や天井が現しにしています。正面は収納を集約しています。

  • カーテンで囲われているのがベットスペースです。正面奥が玄関です。

  • 左手前は、洗面脱衣です、使う時だけエナメルのカーテンで仕切ります。

  • 玄関から見て右側は下駄箱やクローゼット、ストック収納、洗濯機、キッチン、冷蔵庫、書斎のための本棚といった壁面いっぱいの収納になっています。

  • レースのカーテンを閉めたワンルームです。右側の壁にキッチンと必要な収納を集中させています。

  • 壁を取り払い大きなワンルームとして、着く時に可変するようにカーテンで間仕切りました。

作品紹介

2012年まで住んでいた自邸です。

都内のマンションの一室を最小限のリノベーションをして生活することを考えました。

 小割りにされてた部屋の間仕切りを取り払い、造作天井はベットスペースエリアだけにして、鉄筋コンクリートの柱や梁、壁などを現しにして、必要な最低限の家具や棚を片側の壁の一面にキッチンと合わせて集約しました。

 ワンルームをカーテンで仕切り、夜だけベットルームにしたり、洗面脱衣所を耐水性のあるエナメルのカーテンにして、使う時だけ囲っています。

 結果、柔らかい境界による桜の木を前にした、大らかな最大限のリノベーションになりました。

 

設計担当:納谷学

施工会社:スタジオ グリッド 小堀裕之、添田亮

塗装業社:マリコペイント 鞠子昭敏

 

床面積:62.38㎡(18.87坪)

建築前の土地

元々のプランです、三角形の中に細かな部屋が間仕切られていました。

作品データ

所在地: 東京都 品川区

土地面積: 88.72㎡

延床面積: 62.38㎡

土地の形状: その他変形地

施工会社: スタジオ グリッド

作品集

物件

■ 古民家ヴィラ「あんたげ」 〜棚田を未来へ繋ぐ土間空間〜

福岡県・東峰村で、2017年7月の九州北部豪雨による水害...
物件

■ シブヤアパートメント 〜ソーホー戸建て賃貸住宅〜

木造戸建て賃貸住宅です。 敷地奥は道路側より1.8mほどレ...
物件

■ 恵比寿の長屋 〜3世帯長屋の重なり、繋がり、気配〜

地下1階、1階、2・3階の3世帯の住宅です。 3世帯を短...
物件

■ 「突然ですが、納谷建築設計事務所 2019年9月7日から19日まで 丸の内に引っ越します」展

東京・丸の内のASJ TOKYO CELLで、納谷建築設計事務所の展覧...
物件

■ 保戸野桜町モデルハウス 〜東北の冬に備えて〜

秋田市内の住宅地に計画したモデルハウスです。 いつもはあ...
物件

■ 岩屋キャンプ場 改装PROJECT 〜開かれたキャンプ場を目指して〜

東峰村のキャンプ場の管理棟とコテージの設備の老朽化に伴な...
物件

■ 尼崎パーキングエリア 〜160mの縁側〜

尼崎パーキングは、陸橋型高速道路・阪神高速3号神戸線の上り...
物件

■ 南烏山の住宅 〜木造3層で縦に暮らす〜

木造3階建ての住宅です。 1階はガレージと主寝室、2階はL...
物件

■ 吉祥寺南町PROJECT 〜名前のないスペース〜

このPROJECTは、市場に出回っている中古の戸建住宅を購入し、...
物件

■ 長久手の平屋 〜関係を形づくる〜

大きな敷地の中にクライアントのご両親の家、実家があります...
物件

■ 代沢1丁目PROJECT 〜街並みを住宅内部に取り込む〜

このPROJECTは、市場に出回っている中古の戸建住宅を購入し、...
物件

■ 秋田内陸縦貫鉄道 阿仁合駅PROJECT 〜駅を住民に開放する〜

将来の観光客・インバウンドの増加を見込み、既存の阿...
物件

■ 西原2丁目PROJECT 〜部屋に個性を与える〜

このPROJECTは、市場に出回っている中古の戸建住宅を購入し、...
物件

■ 秋田県庁前バス停 〜CLTとかまくら〜

秋田市の県庁前のバス停を建替える計画でした。 条件が...
物件

■ 秋田トヨペット 男鹿店 〜3つのレイヤーが重なりつくる多様性〜

秋田県・男鹿市の国道沿いに建つディーラーです。 新車の試...
物件

■ 秋田トヨペット 能代店 〜杉の柱林の下で〜

故郷に秋田トヨペットの能代店を設計しました。 能代は、か...
物件

■ 出雲崎のセカンドハウス 〜迫る山と海との間に〜

出雲崎の海岸は、「世界一きれいな夕日が見れる海岸」として...
物件

■ 我孫子の住宅 〜南に大きく開く〜

南斜面の傾斜地の途中にプライバシーを守りながら開放的な住...
物件

■ 高崎の住宅 〜街に開く中庭デッキテラス〜

古くからの住宅地の角地に建つ住宅です。 建物を北側に寄せ...
物件

■ PROTO passo 〜街(ストリート)を引き込む〜

〜街を引込む〜 計画地は、西武新宿線・新井薬師前駅から西...
物件

■ トヨタカローラ秋田 秋田南店 〜車と木質空間〜

車のディーラーのほとんどは、石や金属を使ってシャー...
物件

■ 黒木写真スタジオ 〜光のリフレクター〜

小さな写真スタジオを鉄骨造で造りました。 スタジオを2階...
物件

■ 番田の住宅 〜リビングを中心に、近い未来に対処する〜

クライアントの実家の敷地内に息子さん夫婦の戸建てを建てる...
物件

■ 板橋の住宅2 〜時を経て二度目のリノベーション〜

最初のリノベーションから7年。 二度目のリノベーション「...
物件

■ 秋田トヨペット 角館店 〜武家屋敷と枝垂れ桜の街で〜

秋田県仙北市・角館は武家屋敷が有名です。 その町の国道沿...
物件

■ 昭和こども園 〜屋上園庭と中庭が子供を育てる〜

昭和女子大学のキャンパス内に「昭和こども園」を計画しまし...
物件

■ 秋田トヨペット 横手店 〜車のスケールから人のスケールへ〜

秋田・横手は、「かまくら」で有名な豪雪地域にある地方都市...
物件

■ 東玉川の住宅 〜角地に建つミニマルな白い塊〜

世田谷の住宅地の一角に、地下1階、地上2階の高密度の住宅...
物件

■ 305号室 〜料理を楽しむ生活〜

マンション一室のリノベーションです。 料理が好き、食事す...
物件

■ 京都の住宅 〜四季を感じる町屋の継承〜

日本は、四季折々の季節感を楽しめる国だと思います。「京都...
物件

■ 八雲の住宅 〜アトリエのある住宅〜

住宅地の一画に建つ鉄筋コンクリート造の住宅です。ガレージ...
物件

■ 奥沢の住宅 〜十字プランと4つの庭〜

北東の角地に建つ住宅です。 南側が隣地と接しているため、...
物件

■ センティール・ラ・セゾン千秋公園 〜街に開かれた結婚式場〜

最近では、結婚しても結婚式を挙げないカップルが全体の半分...
物件

■ 徳島の住宅 〜二つの顔(ファサード)を持つ住宅〜

徳島の駅前から続く商店街が終わりかけたところ、住宅街はは...
物件

■ トヨタカローラ秋田 湯沢店 〜北国のピロティとルーバー〜

秋田県・湯沢市のロードサイドに建つカーディーラーです。 ...
物件

■ 羽鳥の平屋 〜畑を横に愛犬と住む〜

茨城・小美玉で農業を営んでいる家族が、畑の隅に家を建てる...
物件

■ 南馬込の住宅 〜北側の斜面に建つ〜

北側の斜面に計画した地下1階地上3階の住宅です。 鉄筋コ...
物件

■ GOTENCHO APARTMENT 〜公園の中に住む〜

計画道路によって、長方形の敷地の一部が切り取られ、変形し...
物件

■ GILIGILI 〜20年以上取り残された土地に〜

自邸です。   敷地は、東急東横線・新丸子駅の綱島街...
物件

■ 明太子発祥の店「ふくや」 〜博多・中洲本店のこだわり〜

明太子発祥の店「ふくや」の福岡・中洲本店の設計をさせてい...
物件

■ アキタアパートメント 〜雪国の工夫〜

秋田に4世帯のための小さな木造のアパートを計画しました。 ...
物件

■ 上三川町の古民家 〜未来へつながる通り土間〜

栃木県・上三川町で、築150年以上の古民家をリノベーショ...
物件

■ 山王の住宅 〜擁壁の上の台形〜

高低差が3Mほどの擁壁の上に住宅を計画しました。   ...
物件

■ 仙川の住宅 〜動物天国〜

飼っているお猿くんのため、二階の部屋を減築して吹抜けを設...
物件

■ 本八幡の住宅 〜小さな住宅の可能性〜

駅から中小のマンションが続き、街が戸建ての住宅地に移り変...
物件

■ 仙台の住宅 〜中庭とデッキテラス〜

北側道路に接道した住宅です。南の隣家の影響を受けるため、...
物件

■ 川口の住宅 〜柔らかい緩衝帯で解決〜

閑静な住宅街にある行き止まりの道路に面しています。 接道...
物件

■ 院内の住宅 〜建具のインスタレーション〜

秋田の雪深い地方・湯沢の院内のリノベーションです。 1階...
物件

■ 綾瀬の住宅 〜築70年に暮らす〜

「築70年くらいの母家に住めますか?」   というク...
物件

■ 208号室 〜最小限で最大限のリノベーション〜

2012年まで住んでいた自邸です。 都内のマンションの一...
物件

■ 市川の住宅 〜入れ子の隙間を愉しむ〜

「市川の住宅」は、鉄筋コンクリートの箱を入れ子構造によっ...
物件

■ 恵比寿の住宅 〜5.1坪のスキップフロア〜

敷地面積8.62坪、建築面積5.10坪、これまで設計してき...
物件

■ 日立の二世帯住宅 〜ネックレスで出来た中庭と坪庭〜

日立に二世帯住宅を計画しました。 前面道路と敷地に120c...
物件

■ 門前仲町の住宅 〜都市の三層〜

永代通り通りから一つ入ると、急に静かな空気が流れます。 ...
物件

■ 東浦和の二世帯住宅 〜吹抜けスロープとおばあちゃん〜

おばあちゃんと住む二世帯住宅です。   おばあちゃん...
物件

■ 西荻窪の住宅 〜バス停の前とRCの光井戸〜

西荻窪にあるバス停の前に計画した住宅です。   当初...
物件

■ PROTO plus 〜個性あふれる住戸の集合体〜

2003年に竣工した賃貸集合住宅『PROTO』の増築です。 PR...
物件

■ 府中の住宅 〜角地の解答〜

敷地は、府中の住宅地の角地です。 二方向に道路があるので...
物件

■ 新潟の住宅 〜寒冷地の中庭と彫刻的な街の顔〜

敷地は、新潟市内の住宅地です。 南側の道路に接道している...
物件

■ 田無のリノベーション 〜子育てが終わった老後の新しい生活〜

子供が巣立ち、夫婦二人のための新しい住宅としてリノベーシ...
物件

■ 祖師谷の住宅 〜仙川と暮らす〜

仙川沿いに多くの住宅が建ち並んでいますが、ほとんどの住宅...
物件

■ TDW 〜Container Ground NAUTICA〜

東京デザイナーズウィークのコンテナ・グランドでスポンサー...
物件

■ 富ヶ谷の集合住宅 〜26世帯の立体街区〜

渋谷区・富ヶ谷に計画した26世帯の集合住宅です。 一般的...
物件

■ サッポロアパートメント 〜交差するバッファースペース、インナーテラス〜

札幌に計画した9世帯のアパートです。   北国の生活...
物件

■ 湯の山の平家 〜十字プランと四つの庭〜

ご夫婦がリタイア後の生活のため、三重県・湯の山に終の住処...
物件

■ 船橋の住宅 〜跳ね出したロフト付き縦長住居〜

主要駅から少し離れた郊外住宅地。 敷地のある町内のブロッ...
物件

■ 渋谷の住宅 〜高低差を利用し、交差する庭と住空間〜

幹線道路から少し入ると静かな住宅地へと変わります。 「渋...
物件

■ 板橋のリノベーション 〜柔らかくプライバシーを守る〜

既存の建物は鉄骨3階建てで、1階は駐車スペース2台分のピ...
物件

■ 湯沢の二世帯住宅 〜土間と廻り廊下の空気層〜

秋田の湯沢は、雪深いところです。毎年2m程の雪が積もります...
物件

■ 西新井のリノベーション 〜柔らかい境界による自立した生活〜

車いすの生活を余儀なくされた家族の住宅です。 健常者と同...
物件

■ 富津の二世帯住宅 〜12の箱と隙間〜

敷地は、街道沿いの橋の袂。道幅が狭い割に車の交通量が比較...
物件

■ 経堂の住宅 〜長いテラスに寄り添う〜

敷地は、ミニ開発された一区画。 土地の区画所有者が互いに...
物件

■ 木挽町御殿プロジェクト 〜柔らかい境界で飼い犬と暮らす〜

元ビジネスホテルだった10階建てビルのワンフロアを住宅に...
物件

■ 北茨城の平家 〜川に寄り添う〜

小さな川だけど、鮎が遡上し太公望が竿をのばす清流沿いに、...
物件

■ 初台の住宅 〜アトリエのある住まい〜

住宅に天井の高いアトリエが欲しいとの依頼がありました。 ...
物件

■ カミノシゴトvol.3 〜美濃和紙+空間+デザイン〜

新宿リビングデザインセンターOZONEで、「カミノシゴトvol.3...
物件

■ 502号室 〜アートと共に〜

所有しているアートを飾りたいというニーズに、床と天井を同...
物件

■ 多摩川の二世帯住宅 〜緩やかに繋げ、緩やかに仕切る〜

多摩川沿いの台形の変形敷地に計画した二世帯住宅です。 1...
物件

■ 千駄ヶ谷のオフィス 〜最小限の操作と大きな変化〜

小さなオフィスビルの大きなリノベーションです。 コストを...
物件

■ 祖師ヶ谷大蔵の住宅 〜離れの水周り〜

通りの突き当たり正面の土地なので、開口部は玄関だけにして...
物件

■ デザイン建直しスクール 〜BombaySapphire〜

「デザイン建直しスクール」は、建替えられる桑沢デザイン研...
物件

■ 三軒茶屋の住宅 〜都市に浮かぶ〜

敷地面積60㎡の土地に、6m×6m×6mの立方体を...
物件

■ 八ヶ岳のセカンドハウス 〜森の中に浮かぶ〜

八ヶ岳の麓、ウインタースポーツを楽しむご夫婦ためのセカン...
物件

■ 404号室 〜音楽とキッチン〜

旦那さんは、オーディオマニア。奥さんは料理にこだわり。「...
物件

■ 新丸子の住宅 〜座の生活を楽しむ〜

新丸子商店街を抜け住宅地に入ってすぐ東南の角地にこの敷地...
物件

■ 千歳烏山の住宅 〜小さな自然を切り取る〜

敷地は、北側と道路を挟んだ東側に高い木々が生い茂る寺町特...
物件

■ PROTO 〜都市のキューブ〜

敷地は東京・新井の変型五差路に突き出すようなところです。...
物件

■ 宝珍楼 〜商店街のヴォイド〜

東急東横線・新丸子駅東口。東口駅前商店街の一角に、...
物件

■ 津田山の集合住宅 〜丘上のヴォイド〜

眺望のいい丘の上に建つ5世帯の小さな集合住宅です。北側接...
物件

■ 能代の住宅 〜夏の家、冬の家〜

能代は秋田県の北西部、日本海から吹く風は強い。夏は心地よ...
物件

■ 江戸川の住宅 〜高架前の解答〜

敷地前には何本もの鉄道がはしる高架がある。 電車の音を遮...
物件

■ 多摩川の住宅 〜光の縁側とプライバシー〜

周囲は住宅に囲まれ、全面道路は狭く北側のため大きな開口が...
物件

■ 調布の住宅 〜V字の中庭〜

前面道路は、駅へとつながる交通量の多い西側道路です。 計...