浅草橋の長屋

  • 撮影 吉田誠

作品紹介

隣地境界ギリギリに立つ、4階建ての二世帯のための長屋

 

 

【予算から逆算してのボリューム設定】

浅草橋の建物が混み合ったエリアでの二世帯住宅の計画。4人家族となることを見越したご夫婦とご親戚の叔父さんのための長屋の計画です。
敷地は4.7m×9.3mの13坪。敷地内の一部は近隣住居の既存地下配管ルートとして使われ、基礎工事可能な範囲が限られ、1階で建築可能な範囲は3.8m×9.3mの広さは11坪となります。
建物の大きさは、予算の制約から逆算をして35坪と設定をしました。その上で35坪のボリュームをどのように配分するかの検討を行いました。

 

【ボリューム配分】

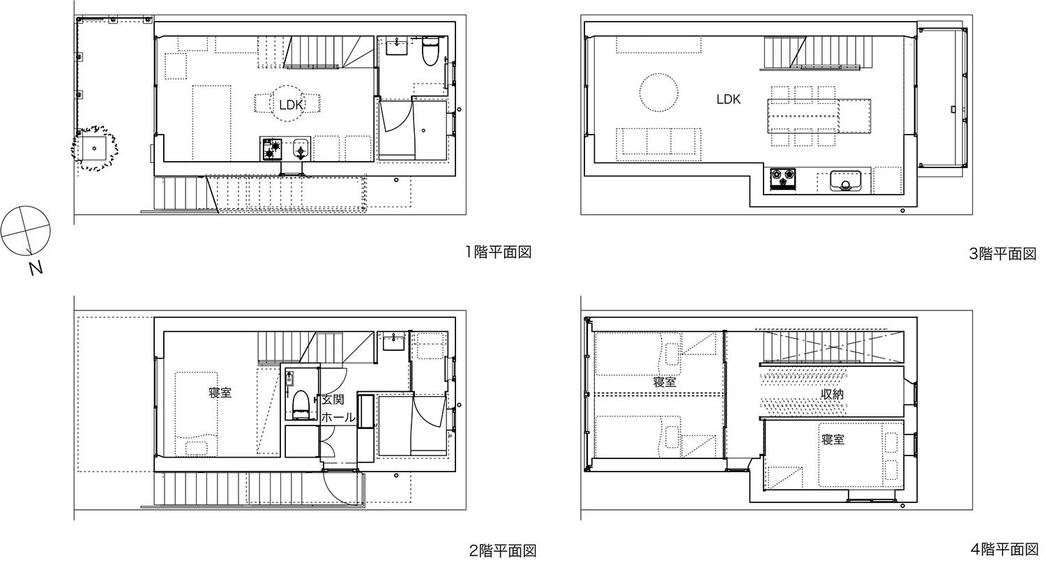
1、2階は道路側にスペースをあけ、南と西の隣地境界線ギリギリにボリュームを配置しました。基礎が作れない西側のスペースには、2階への屋外階段を設置しました。3、4階は道路側にボリュームを配置して、反対となる西側を空けることにしました。屋外階段の上でプラン上必要となるところに、3、4階のボリュームを張り出させました。
1階と2階の道路側半分を叔父さんの世帯に割り当てました。2階の反対側と3、4階をご夫婦の世帯に割り当てました。1、2階の二層吹き抜けの外部空間はおじさんの小さな庭となります。木製のフェンスで道路からの視線を遮ります。外観の写真では見えませんが、3、4階の道路反対側の外部空間は、ご夫婦のためのテラスとなります。

 

【下の住戸】

テラスを通り、引き違いのアルミサッシを使った玄関扉を開けて、1階に入ります。1階の突き当たりはトイレや浴室の水まわりとなっており、それ以外をワンルーム空間として使います。道路側のテラスと揃え1階の床はモルタルで仕上げています。階段で上がった先には6畳の部屋があり、寝室として使うことを想定しています。

 

【上の住戸】

屋外階段を使って、ご夫婦世帯の2階の玄関にアプローチします。2階にはトイレと浴室があります。3階に上がると17畳のスペースがあり、LDKとして使われています。屋外階段の上に張り出したスペースを使いキッチンを納めました。道路と反対側には2畳のバルコニーがあります。

 

【ローコストの中で求められたデザイン性】

この長屋を設計した頃は、ちょうどオリンピック施設の建設の影響で、建築コストが異常に上がった時期とでした。以前では100万/坪程度でできた仕様の計画ですが、最初の見積もりでは150万/坪を超える金額で出てきました。可能なところの仕様を落とし、なんとか130万/坪程度のコストまで抑え、建設することができました。
建主の希望はローコストでありながらもデザイン性に優れた建物をつくることでした。コスト調整で余計なものを削ぎ落とした中で、基本的な要素をしっかりと作り込むことでその期待に答えようと考えました。
ボリュームの配置や、開口部の配置やディテール、階段のディテールなど、必要とされるところをしっかりと考えて設計をした建物です。

作品データ

所在地: 東京都 台東区浅草橋

延床面積: 115.69㎡

施工会社: 山庄建設

作品集

物件

■ 代々木の二世帯住宅

物件

■ 前野町の家

簾とルーバーで囲われた大きなバルコニーで開放的な内部...
物件

■ 浅草橋の長屋

隣地境界ギリギリに立つ、4階建ての二世帯のための長屋 &nb...
物件

■ 公園前の家_眺めを取り込む横長の窓

公園に挟まれた敷地を購入された、お施主さんからは、眺めを...
物件

■ 公園前の家2_大きな土間がある家

12畳天井高4.1mの大きな土間が玄関となった住宅です。片流れ...
物件

■ 平屋と二階建てが土間で繋がる二世帯住宅

南北の庭を楽しむという共通コンセプトを持ち、フラットな平...
物件

■ 交差点に対して大きく開かれた角地の家

小さな角地の敷地(50平米弱)に建つ地下1階~地上3階+屋上の...
物件

■ 階で別れた玄関共用の二世帯住宅

玄関共用、1階が親世帯、2・3階が子世帯の二世帯住宅です。2階...
物件

■ 交差点に対して坪庭を持った角地の家

ご姉妹とお母様の為に、同時に設計監理をした、二軒屋の一つ...
物件

■ 小さなブロックを繋げた木造3階建て住宅

木造3階建ての住宅の計画。建て主は大きなLDKを中心とした広...
物件

■ 神楽坂の家

平行四辺形の平面形。三角のトップライトと中庭から光を取り...