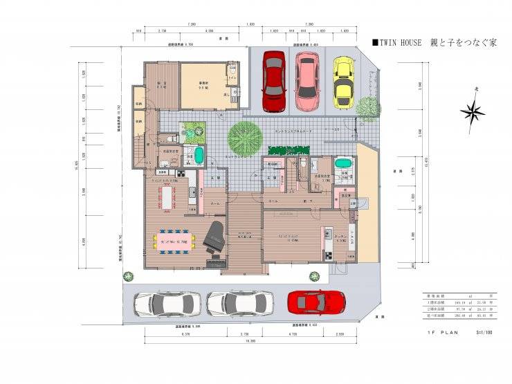
■ 『TWIN HOUSE』親と子をつなぐ家
現在計画中の完全2世帯住宅です。風の通り道であるトンネル...作品紹介
小学生の娘さんが二人いらっしゃる、若いご夫婦一家の家造りに参加させていただきました。 全面的にご信頼いただき、ほぼ当初のプランで実施設計に至りましたが、プレゼン段階で外観のカラーリングを懸念されておりました。ホワイト系が好みの旨提案いただき、ホワイト案の外観図もプレゼンし、両方を毎日毎日眺めていましたところ『やはりブラックが好きになってきましたのでブラックで!』とのお話をいただき、原案通りの姿に!

