■ 八ヶ岳・田中山荘
エコシステムを取り入れた小さな小屋 木造平屋建て <コンセ...作品紹介
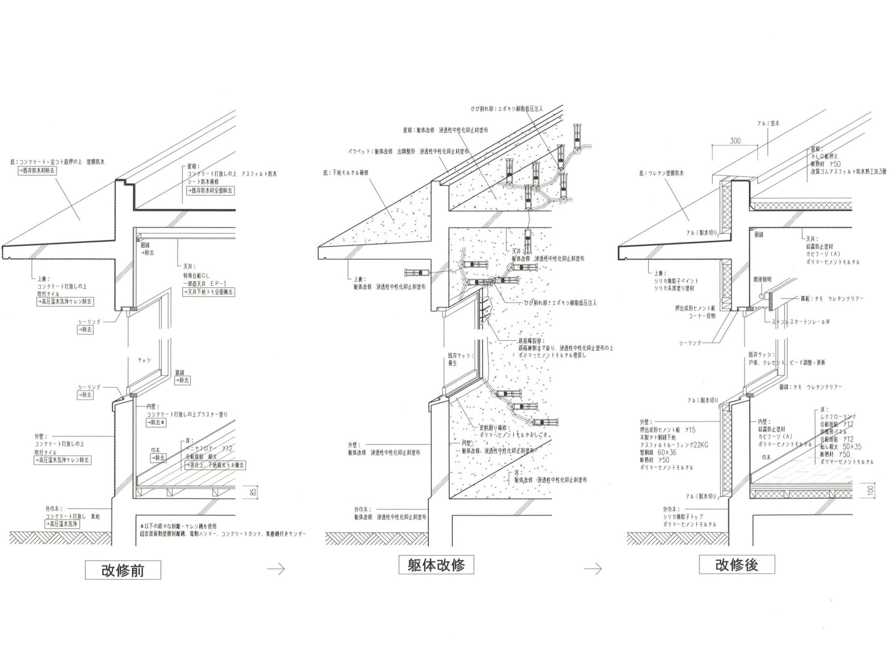
【壁式RC造2階建て住居のパーフェクトリノベーションへの試み】
躯体改修による耐久性向上、乾式外貼り断熱工法による断熱・省エネ性向上、住宅設備機器の更新など総合的に改修。内装では、耐震安全性・バリアフリーに配慮し、間仕切りや造付け収納の工夫。
家の歴史や記憶をできるだけ継承させるため、アルミサッシ、階段の段板、庭の樹木やレンガ、擁壁の大谷石などは、積極的に再利用した。




