住まいの”好き”を見つけるサイト
プロの住宅レシピ
プロが認めた製品カタログ
ストーリーのある住まい
家づくりニュース
工務店を探す
建築家を探す
ログイン
はじめての方へ
会社概要
利用規約
プライバシーポリシー
お問い合わせ
お気に入り記事
こんにちは!ゲストさま
新規会員登録
ログイン
会員様
はじめての方へ
マイページ
こんにちは!ゲストさま
新規会員登録
ログイン
会員様
キッチン(24)
家具・インテリア(16)
照明(6)
建具・窓回り(21)
キッチン(24)
キッチン本体(10)
キッチン水栓(8)
オーブン・クックトップ(3)
食洗機(1)
レンジフード(1)
冷蔵庫(1)
カトラリー(0)
キッチンツール(0)
家具・インテリア(16)
造作家具(5)
イス(2)
テーブル(3)
寝具(1)
収納家具(1)
階段(3)
音響空間(1)
照明(6)
天井・壁照明(2)
間接照明(2)
フロアライト(1)
テーブルライト(0)
デスクライト(0)
ペンダントライト(0)
照明パーツ・その他(1)
建具・窓回り(21)
カーテン(3)
ガラス(1)
ドア・サッシ(6)
ドア取っ手(1)
ブラインド(6)
窓・天窓(4)
建設資材(93)
自然素材(0)
空調(14)
家電(2)
建設資材(93)
木材(5)
床材・フローリング(20)
内装材(14)
外装材(8)
タイル(8)
左官材(12)
壁材・壁紙(6)
屋根材(1)
塗料(11)
断熱材(6)
防水・防腐・防蟻(1)
バルコニー•ベランダ(1)
自然素材(0)
-(0)
空調(14)
エアコン・空調(10)
薪ストーブ・暖炉(4)
家電(2)
ワインセラー(1)
洗濯機・乾燥機(1)
水回り製品(17)
エクステリア/造園・庭(8)
防災・防犯(3)
匠・職人(1)
水回り製品(17)
バス(6)
洗面台(1)
洗面ボウル(1)
水栓(3)
シャワー(3)
トイレ(0)
アクセサリー(3)
エクステリア/造園・庭(8)
植栽・造園・作庭(4)
アプローチ・エントランス(3)
ポスト(0)
デッキ(1)
防災・防犯(3)
防犯(1)
地震対策(2)
匠・職人(1)
匠・スゴイ職人(1)
DIY(0)
パーツ(3)
隠れた名品(2)
DIY(0)
塗料(0)
パーツ(3)
ノブ・取っ手・つまみ(1)
フック・バー(1)
スイッチ(1)
隠れた名品(2)
-(2)
有限会社共同設計・五月社一級建築士事務所
>
減築の家(東小金井の家)
減築の家(東小金井の家)
作品紹介
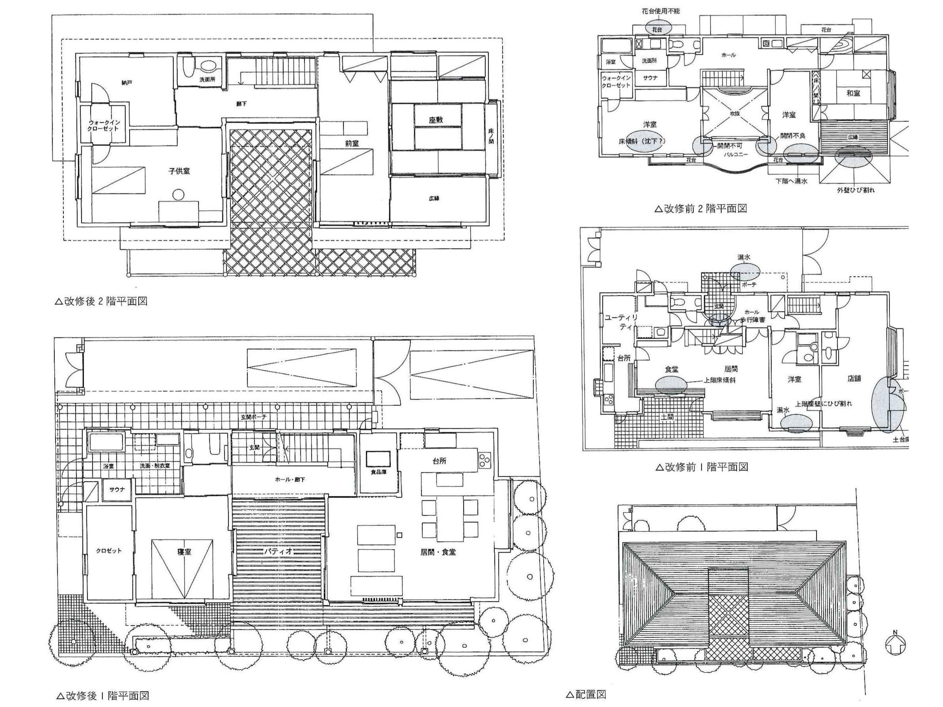
住まい手のライフスタイルの変化、化学物質過敏症に対応するための改修。 「建蔽率・容積率の基準を満たすように、床面積の削減」、「小割りにされた部屋を、広く一体的な空間となるように間取りを変更」、「耐震性の向上」と言う三つの条件に対する回答。
作品集
■ 八ヶ岳・田中山荘
エコシステムを取り入れた小さな小屋 木造平屋建て <コンセ...
■ 八ヶ岳高原の山小屋
八ヶ岳の南斜面、海抜1000mの高原に建つ、山小屋 ・夏涼しく...
■ 乙事の家
八ヶ岳の山麓に建つ別荘 RC+木造 地上2階建て 将来的に...
■ 広袴の家~ハイブリッド・ソーラーハウス~
山の斜面に建つ、エコロジカルハウスの試み。 太陽洸、風、雨...
■ 減築の家(東小金井の家)
住まい手のライフスタイルの変化、化学物質過敏症に対応する...
■ 西荻の家 ~RC造住宅のリノベーション~
【壁式RC造2階建て住居のパーフェクトリノベーションへの...